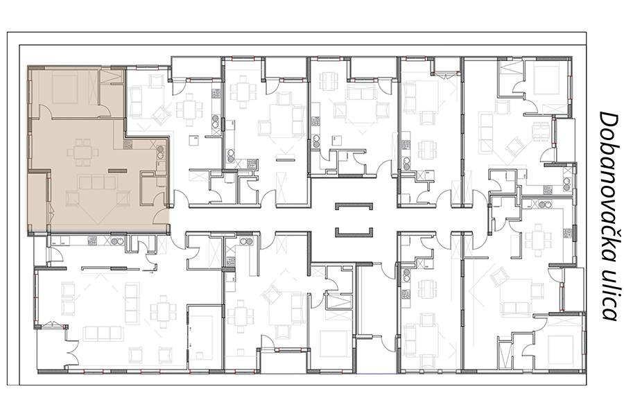
Duplex

STAN 8 - SPRAT

Kontaktirajte nas

Za sve informacije u vezi projekta, kupovine stanova, parking mesta, kao i mogućnosti kreditiranja, kontaktirajte naš prodajni tim. Rado ćemo Vam odgovoriti u najkraćem mogućem roku.

Ovaj sajt koristi "kolačiće" kako bi se obezbedilo bolje korisničko iskustvo. Ako želite da blokirate "kolačiće", molimo podesite svoj pretraživač.